Casa en venta en Fincas del Alba Canning 4 ambientes
- u$s320.000
- u$s320.000
Descripción
Casa moderna en Fincas del Alba a la venta, emplazada sobre un lote de 819 m2 y siendo emplazada sólo en una planta combinando diseño funcionalidad y confort
Construida con excelentes materiales y terminaciones, esta casa brinda calidez, practicidad y un estilo moderno en un entorno natural y tranquilo. Ideal para quienes buscan vivir rodeados de verde sin resignar comodidad ni diseño.
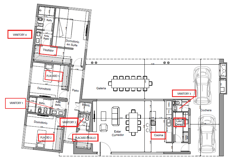
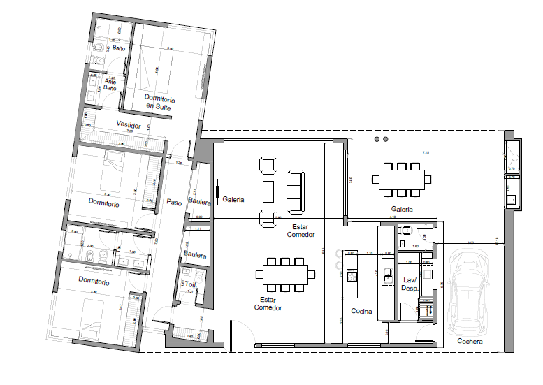
Distribución:
✔️ Amplio living comedor con vistas al jardín.
✔️ Cocina integrada con lavadero y despensa.
✔️ Dormitorio principal en suite con vestidor.
✔️ Dos dormitorios adicionales con placard con baño completo compartido.
✔️ Toilette de recepción.
✔️ Galería con parrilla y vista abierta al parque y piscina.
✔️ Cochera cubierta para dos autos y baulera.
✔️ Gas natural.
✔️ Internet por fibra óptica.
✔️ Losa radiante.
✔️ Caldera.
✔️ Seguridad las 24 hs.
✔️ Superficie cubierta: 180 m2
✔️ Superficie semi cubierta: 58 m2
Valor de Venta: usd 320.000.- ¡Apto crédito hipotecario! ¡Puede financiación! ¡Escucha oferta!
Fincas del Alba
ubicado en en el Kilómetro 4, de la Ruta 52, en Canning, Gran Buenos Aires Sur, Ofrece todos los servicios: gas natural, electricidad, telefonía, fibra óptica, red multipropísto y pavimento.
Amenities: Piscina, Sum, Club house de 700 metros cuadrados para la práctica de deportes, apto para gimnasio o la realización de fiestas sociales de los propietarios.
La información y medidas suministradas son aproximadas y deberán ratificarse con la documentación pertinente, y no compromete contractualmente a nuestra empresa. Las fotografías provistas no son vinculantes ni contractuales. Pendiente de cumplimentar COTI.
Araucasi Soluciones Inmobiliarias
CPMCLZ (Col4048)
Dirección
Abrir en Google Maps-
Dirección: Fincas del Alba, Mariano Castex, Canning, Provincia de Buenos Aires, Argentina
-
Ciudad: Canning
-
Provincia/Partido: GBA Sur
-
Zona: Fincas del Alba
-
País: Argentina
Detalles
Updated on noviembre 14, 2025 at 3:28 pm-
ID Propiedad ARA52200
-
Precio u$s320.000
-
Superficie Cubierta 180 m2
-
Superficie del Lote 819,40 m2
-
Dormitorios 3
-
Ambientes 4
-
Baños 2
-
Garages 2
-
Tipo de Propiedad Casas
-
TIpo de Operación Venta
-
Superficie Semi Cubierta 58 m2
-
Plantas 1















